当前位置 :主页 / BBV体育(中国)官方在线 / 环保工程 / 正文
随着科学的发展和时代的变迁,我们的生活开始被各种电子产品和智能产品所包围,如今产品已经开始向着智能化发展,但是鲜为人知的是,智能化的电子产品,其实都来自于智能化的生产车间,现在很多电子元件的生产企业都会聘请专业的恒温恒湿公司,在车间中安装恒温恒湿空调系统。那么,恒温恒湿空调系统的原理是什么呢?

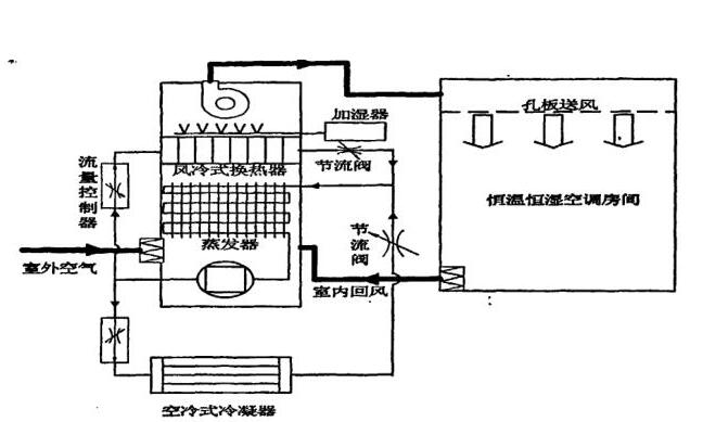
我们常说的恒温恒湿空调系统主要包括4个子系统,分别是恒温恒湿空调压缩制冷剂循环系统、恒温恒湿空调空气循环系统、空调电器自控系统;恒温恒湿空调压缩制冷剂循环系统.
恒温恒湿空调系统原理:
低温低压的制冷剂气体被压缩机吸入并压缩成高温高压的制冷剂气体(压力和温度增加),高温高压的制冷剂气体通过冷凝器(风冷或水冷)放出热量,冷凝成液体。通过截流装置(膨胀阀或毛细管等)节流后变成低温低压制冷剂液体进入低压的蒸发器,蒸发器中的液态制冷剂低压蒸发吸收空气的热量(从而空气被降温及除湿),最终制冷剂与空之间形成一定的温度差,液态制冷剂亦完全蒸发变为低温低压的气体回到压缩机压缩,完成制冷剂循环过程。同理,也可进行热循环,以此就会达到一个动态平衡,相继就出现了恒温恒湿的效果