BBV体育-BBV体育(中国)官方在线
恒温恒湿实验室设计图
我们已经跟大家分享了很多恒温恒湿实验室相关的技术问题了,最近些朋友电话过来找我们要恒温恒湿实验室设计图,其实直接这样拿恒温恒湿实验室设计图意义不太大。要知道,我们做的恒温恒湿实验室都是需要深度跟客户沟通,获取最真实的需求后,才能做出满意的恒温恒湿实验室设计图的。不过可能有的朋友就是想先看下恒温恒湿实验室设计图大概是个什么样子的,好有一个轮廓,有一个概念吧,为了解决这个需求,我们就整理了一些恒温恒湿实验室设计图供大家参考:
1.恒温恒湿房设计图

2.恒温恒湿车间设计图

3.恒温恒湿实验室设计图

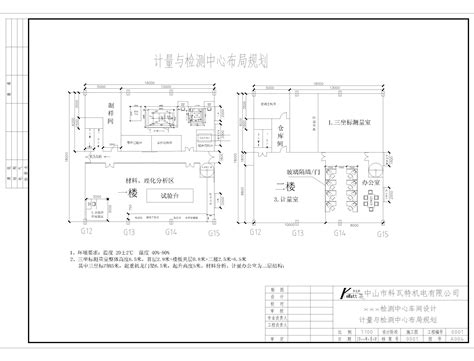
4.计量与检测中心恒温恒湿实验室设计图

最后,大家务必注意,请不要直接对照以上恒温恒湿实验室设计图去猜想,去依葫芦画瓢哦,这样出了问题后果比较严重,如有相关问题,务必联系我们!